Projektankündigung
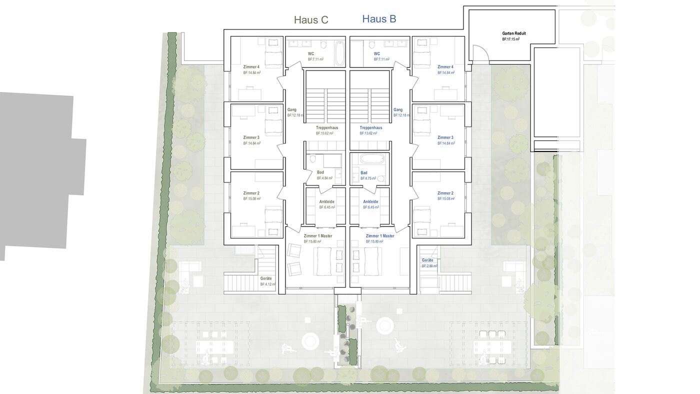
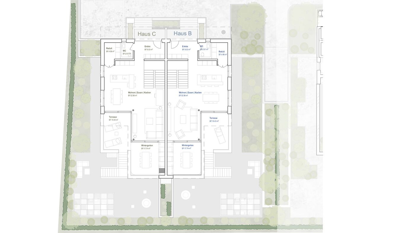
Diese einzigartige Duplex-Villa in Eich bietet Ihnen nicht nur eine grosszügige Wohnfläche auf zwei Ebenen, sondern auch eine traumhafte Aussicht auf den Sempachersee. Das elegante Wohnambiente und die hochwertige Ausstattung setzen neue Massstäbe für exklusives Wohnen. Die Grundrisse können nach Ihren persönlichen Wünschen angepasst werden, um Ihren individuellen Wohntraum zu verwirklichen.
Besondere Merkmale im Überblick
- Aussicht auf den wunderschönen Sempachersee
- Grüne und grosszügige Umgebung
- Wintergarten und gedeckter Gartenbereich mit Pergola
- Heizanlage betrieben mit Erdsonden-Wärmepumpe inkl. Freecooling
- Komfortlüftung, regulierbar
- Photovoltaik-Anlage
- Grosszügige Grundrisse und Wohnflächen
- Offene Wohnbereiche mit modernsten Ausstattungen
- Masterbedroom mit Ankleide
- Hobbyraum
- Autolift
Profitieren Sie von einer privilegierten Lage in Eich, wo urbaner Komfort auf ländliche Idylle trifft. Zentrale Einrichtungen wie Schulen, Einkaufsmöglichkeiten und der ÖV sind in wenigen Minuten erreichbar.
Wir begleiten Sie kompetent von der ersten Besprechung bis zur Schlüsselübergabe und freuen uns darauf, Ihnen Ihr neues Zuhause persönlich vorzustellen. Weitere Informationen finden Sie auf unserer Projektwebseite unter www.wygart.ch.









